Anlagenplanung - Hilfe bei Gleisplan! :)

Für alle Diskussionen rund um analoge Modellbahntechnik
Marlon1999

Re: Anlagenplanung - Hilfe bei Gleisplan! :)

Beitrag von Marlon1999 » Freitag 27. September 2013, 09:41

Ah, ok danke :D dann ist es ja gut gewesen, dass ich es mir nicht gekauft habe. Aber das war ja ein Angebot, wo eine Schiene umgerechnet weniger als ca 0,40€ gekostet hätte. Das ist doch eigentl. für K-Gleis billig, oder?

Naja, wieder zurück zum wichtigen Fragen :D Ich bin gerade dabei, einen SBF für die Anlage zu entwerfen und bedenke dabei, dass in der Mitte noch platz für Luken bleiben muss. Da bin ich wahrscheinlich noch eine gewisse Zeit beschäftigt :D

Gruß
Marlon1999

Benutzeravatar
Stephan D.
Forumane
Beiträge: 4406
Registriert: Sonntag 11. Januar 2004, 10:58
Wohnort: Zuhause

Re: Anlagenplanung - Hilfe bei Gleisplan! :)

Beitrag von Stephan D. » Freitag 27. September 2013, 10:57

Hallo Marlon!
Marlon1999 hat geschrieben:.....
Aber das war ja ein Angebot, wo eine Schiene umgerechnet weniger als ca 0,40€ gekostet hätte. Das ist doch eigentl. für K-Gleis billig, oder?
.....
Ja es wäre preiswert gewesen. Aber man darf nicht nur auf den Preis schauen. Man muß auch beachten ob man alle bzw. den größten Teil der Gleise auch wirklich braucht. Was würde es nützen wenn man zwar günstig 500 Gleise kaufen kann aber am Ende nur 300 davon tatsächlich benötigt? Darum erst planen und dann schauen. Wenn man dann ein derartiges Angebot findet bei dem man alle bzw. die meisten Gleise verwenden kann sollte man zuschlagen.

Gruß
Stephan
H0: Wechselstrom + Gleichstrom
G: nur US (D&RGW)

Marlon1999

Re: Anlagenplanung - Hilfe bei Gleisplan! :)

Beitrag von Marlon1999 » Freitag 27. September 2013, 12:39

Ah, ok... Danke :D ich habe jetzt schon einige Versuche des SBF gehabt, aber irgnedwie schaffe ich es nicht auf die Breite der Anlage einen gescheiten SBF zu bauen. Das hier ist noch mein bester Versuch gewesen:
SBF_(1)_3D_TP.JPG
Was meint ihr? Man könnte ca zwei Lucken einbauen.

Gruß
Marlon1999

Benutzeravatar
Maik Costard
Forumane
Beiträge: 2482
Registriert: Dienstag 19. Oktober 2004, 08:51
Wohnort: Göppingen

Re: Anlagenplanung - Hilfe bei Gleisplan! :)

Beitrag von Maik Costard » Freitag 27. September 2013, 12:55

Einen Gleisplan kann man immer nur im Zusammenhang mit der Anlage vernünftig beurteilen. Zeichen immer die Grundfläche der Anlage mit ein, so dass man sofort sieht, wo was ist.
Um eischätzen zu könne, wie groß das Einstirgsloch sein muss, baue mal so etwas zum Beispiel aus Wäscheleine in der vorgesehenen Höhe und versuche dort hindurch zu kommen. Wenn die Anlage in 70 cm Höhe ist und dort noch ein Schattenbahnhof 20 cm tiefer drunter ist, bleiben nur noch 50 cm übrig. Aus der Tiefe durch ein zu kleines Loch aufzutauchen kann sportlich werden.
Schönen Gruß
Maik
Die blaue Schrift sind Links zum draufklicken

Marlon1999

Re: Anlagenplanung - Hilfe bei Gleisplan! :)

Beitrag von Marlon1999 » Sonntag 29. September 2013, 14:21

Hi,

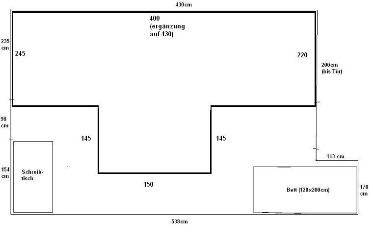
Die gesamte braune Fläche, so dachte ich, ist die Grundfläche der Anlage. Natürlich könnte man da, wo noch Platz ist, eine Ein- oder Ausbuchtung machen. Bei dem, dass man nur einen kompletten Gleisplan beurteilen kann, habe ich ein Problem. DAS IST NÄHMLICH DAS PROBLEM! :( Ich bekomme keinen gescheiten Gleisplan hin, der den sichtbaren Teil der Anlage zeigt. Bei mir ist dass dann immer nur (mehr oder weniger) ein Oval mit einer ICE Trasse und einem HBF. Das wars... :? Solch eine symetrische/langweilige Anlage will ich aber eigentl. nicht haben. Aber trotzdem sollte noch genug Platz für anderes sein, wie eine Stadt, bisschen Hügellandschaft und ähnliches. Wüsstet ihr da eine Lösung? Im Internet habe ich, wie schon einmal erwähnt, auch schon geguckt, aber das sind dann häufig auch nur die Ovale. Oder sie sind immer zu groß, so wie die, die ich euch vor ein paar Tagen geschickt habe.

Gerade bin ich auf einen Gleisplan gestoßen, den ich hier im Forum entdeckt habe. Ich hoffe, es ist ok, dass ich ihn hier poste :D http://forum.miniatur-wunderland.de/dow ... &mode=view Dieser ist zwar meiner Ansicht nach etwas überladen, aber trotzdem finde ich ihn nicht schlecht. Was denkt ihr? Nicht, dass ich ihn 1:1 nachbauen will, aber so als kleine Anregung für mich :D Nur das Problem ist: Wo soll denn DA noch eine Stadt hin? Die Anlage soll meines Wissens Industrie dastellen, so wie das aussieht. Ich will ja aber auch Landsc haftsbau machen und nicht alles mit Gleisen voll :D Was denkt ihr? Blöde Frage: Ist der überhaupt h0? Der ist aber Roco und nicht Märklin :D

Ich hätte eine Idee, wo DA noch eine Stadt hinpassen würde: Da, wo bei der Anlage der Gang ist. Oder? Nur die Frage ist: Könnte man irgendwie die Rechte Ausbuchtung, die ca im 45° Winkel nach unten rechts geht, wo anders hinsetzten? Beispielsweise in die Mitte?

Ich habe es jetzt mal GROB als K-Gleis Version gebaut.
Eigentl. wäre da noch genug Platz für eine Stadt um den Bahnhof und in der Mitte noch eine Drehscheibe, die aber die Software nicht kennt. Deswegen ist sie nicht eingezeichnet. Die Anlage könnte dann eine Art "T-Form" bekommen. Diese müsste dann aber oben bei Raum (in der Skizze) platziert werden. Die Grundmaße sind dann: 410x245cm (LxB) und die Ausbuchtung des T ist dann nochmal 150x145cm (LxB) also so:
dachboden_skizze_wie_MoBa_8.JPG
Gruß
Marlon1999 :D
Dateianhänge
Dachboden_MoBa_Sichtbare_Ebenen_Screens_2.JPG

teddych

Re: Anlagenplanung - Hilfe bei Gleisplan! :)

Beitrag von teddych » Montag 30. September 2013, 06:35

Hallo Marlon

Ich finde auch, dass der Gleisplan überladen ist. Aber das ist Geschmackssache und wenn ohne Landschaft gebaut werden soll auch OK.

Du hingegen willst auch Landschaft und Stadt. Auch das ist OK, muss aber eingeplant werden. Bei deinen weiteren Überlegungen solltest du deshalb einmal in Betracht ziehen ein ausgewachsener Bahnhof weg zu lassen. Ein kompletter ICE / IC ist gut und gerne 3 bis 4m Lang. Ein entsprechender Bahnhof mit Weichenstrassen werden dann schnell 6 - 10m lang. Ehm, so viel Platz hast du nicht. Wenn du also einen kompletten Bahnhof bauen willst, dann musst du Kompromisse eingehen. Viel Kompromisse eingehen. Ev. so viel, dass der Bahnhof ganz weglassen vielleicht der beste Kompromiss ist. Ich selbst habe 5.5m x 3.3m zur Verfügung. Mein Bahnhof ist zu einer S-Bahn-Verzweigungs-Haltestelle degradiert worden mit 1m Perronlänge. Da passt gerade mal ein 3-teiliger Zug rein. Die ICEs / ICs bleiben aussen vor, bzw. halten nicht. Dafür bleibt Platz für anderes.

Ach und noch was: Märklin hat ein Flex-K-Gleis im Program. Das solltest du beim Zeichnen auch nutzen.

Gruss
Teddy
_________________
Planungshilfe für Modellbahn: Der Fragenkatalog

Marlon1999

Re: Anlagenplanung - Hilfe bei Gleisplan! :)

Beitrag von Marlon1999 » Montag 30. September 2013, 14:10

Hi,

danke für deine Antwort. Wegen dem Bahnhof: Das heißt, eine 2-gleisige Hauptstrecke. Bei dem Bahnhof könnte es sich dann zu 3 Gleisen oder so verwandeln, oder? Oder wäre an einer Stadt eine Nebenbahn besser? Aber dann könnte ich das mit entgegenkommenden Zügen nicht hinbekommen und das wäre ja eigentl. schon schade... Wegen den Flexgleisen: Ich kenne die, bloß meine Software nicht :D Die kann man bei der nicht biegen. Ist halt eine Kostenlose Software :D Wäre dann ein 3-4 Gleisiger Bahnhof mit dem "Bahnhof Mittelstadt" realistisch? Könnte man zusätzlich noch eine U-Bahn Station bauen, weil die würde unterirdisch ja kaum Platz wegnehmen und ich könnte da über eine längere Strecke auch lange Züge wie den ICE parken lassen. Evtl ähnlich gestaltet wie Stuttgart 21? Nur halt V-I-E-L K-L-E-I-N-E-R ! ! ! :D ??

Viele Grüße,
Marlon1999
Zuletzt geändert von Marlon1999 am Montag 30. September 2013, 18:21, insgesamt 2-mal geändert.

Benutzeravatar
Stefan mit F
Forumane
Beiträge: 8000
Registriert: Mittwoch 1. Juni 2011, 18:09
Wohnort: 2⅙ Grad südlich und 2½ Grad westlich des MiWuLa

Re: Anlagenplanung - Hilfe bei Gleisplan! :)

Beitrag von Stefan mit F » Montag 30. September 2013, 17:41

Moin Marlon,

ich habe leider momentan sehr viel zu tun, daher habe ich bei diesem Thread erstmal abgewartet was weiter passiert... :wink:

Nur ein Hinweis: Man macht sich u.U. strafbar, wenn man Bilder, die einem nicht gehören, speichert und hochlädt.
Ich vermute mal, dass zumindest die letzten beiden Bilder nicht von dir sind! Eines davon habe ich hier gefunden.
Bitte lösche sofort alle Bilder, die du nicht selbst angefertigt hast! Sonst kann das ziemlich teuer werden!
Die AfD im Bundestag ist eine Schande für Deutschland.
‒ Esther Bejarano, Holocaust-Überlebende, 15.12.1924 - 10.07.2021

teddych

Re: Anlagenplanung - Hilfe bei Gleisplan! :)

Beitrag von teddych » Montag 30. September 2013, 17:46

Hallo Marlon

Ich rate dir nur Bilder zu verwenden, die du selbst erstellt/fotografiert hast. Bilder klauen kann unangenehme Folgen haben.

Unter Planungssoftware findest du die Programme die ich getestet habe. Da hat es auch kostenlose Software darunter, die mit Flex-Gleisen umgehen kann.

Ich selbst baue eine zweigleisige Hauptstrecke, welche in beide Richtungen eine eingleisige Abzweigung hat. Der Bahnhof Ziegelbrücke in der Schweiz ist ähnlich, ich habe jedoch nur vier kurze Perrons. In Ziegelbrücke gibt es auch diverse ICs/Railjets/ICEs ohne Halt, Ansonsten halten nur S-Bahnen und ein IR pro Stunde. Bei mir im Modell gibt es jedoch keine IRs die halten, dafür ist der Platz zu eng.

Gruss
Teddy

MasterK

Re: Anlagenplanung - Hilfe bei Gleisplan! :)

Beitrag von MasterK » Montag 30. September 2013, 17:55

Stefan mit F hat geschrieben: Nur ein Hinweis: Man macht sich u.U. strafbar
Mindestens eine vernünftige Quellenangabe dazu...

Marlon1999

Re: Anlagenplanung - Hilfe bei Gleisplan! :)

Beitrag von Marlon1999 » Montag 30. September 2013, 18:28

Hi,

Danke euch :D und ich verspreche euch: DAS WAR KEINE ABSICHT!!! Ich habe jetzt den einen Eigentümer der Bilder gefragt, ob ich seine Bilder hier posten darf. Wenn ich sein ok bekommen habe darf ich, oder?

Sorry nochmal :shock:
Gruß
Marlon1999

Benutzeravatar
Stefan mit F
Forumane
Beiträge: 8000
Registriert: Mittwoch 1. Juni 2011, 18:09
Wohnort: 2⅙ Grad südlich und 2½ Grad westlich des MiWuLa

Re: Anlagenplanung - Hilfe bei Gleisplan! :)

Beitrag von Stefan mit F » Montag 30. September 2013, 18:48

Moin,
Marlon1999 hat geschrieben:Danke euch :D und ich verspreche euch: DAS WAR KEINE ABSICHT!!! Ich habe jetzt den einen Eigentümer der Bilder gefragt, ob ich seine Bilder hier posten darf. Wenn ich sein ok bekommen habe darf ich, oder?
wenn Du dir sicher bist dass er der Eigentümer ist und wenn er es dir schriftlich gibt (mit allen nötigen Formalien) dann geht das In Ordnung. Ich frage mich nur, wozu dieser Aufwand sein muss - Du hättest die Bilder auch einfach verlinken können, das wäre genauso gut gewesen. :wink:
MasterK hat geschrieben:
Stefan mit F hat geschrieben: Nur ein Hinweis: Man macht sich u.U. strafbar
Mindestens eine vernünftige Quellenangabe dazu...
Diesen Kommentar will ich überhört haben! :skull:

Um ein fremdes Bild im Netz zu veröffentlichen, genügt N I C H T ausschließlich die Angabe der Quelle!
Du benötigst dabei I M M E R das Einverständnis des Rechteinhabers!

Das ist etwas völlig anderes als wenn Du eine wissenschaftliche Arbeit verfasst, dabei Quellen von ergänzenden Bildern angibst und anschließend (beispielsweise im Kolloquium) nur einer sehr begrenzen Menge von Personen diese Arbeit, deren Hauptbestandteil DEINE EIGENE LEISTUNG ist, zugänglich machst.
Die AfD im Bundestag ist eine Schande für Deutschland.
‒ Esther Bejarano, Holocaust-Überlebende, 15.12.1924 - 10.07.2021

Marlon1999

Re: Anlagenplanung - Hilfe bei Gleisplan! :)

Beitrag von Marlon1999 » Dienstag 1. Oktober 2013, 19:21

Hi,

Ich habe jetzt die schriftliche Erlaubnis von dem Eigentümer diese Bilder zu posten.
S21_Nachbau_H0.jpg
S21_Nachbau_h0_2.jpg
S21_Nachbau_h0_3.jpg
S21_Nachbau_h0_4.jpg
Wie fändet ihr das auch bei meiner Anlage? So könnte man noch einen guten Bahnhof in die Anlage bauen, ohne viel Platz zu "verschwenden". Zur Sicherheit gebe ich hier nochmal den Link an, von welcher Seite ich die Bilder habe: http://www.stummiforum.de/viewtopic.php?f=51&t=53625

Gruß
Marlon1999
:D

MasterK

Re: Anlagenplanung - Hilfe bei Gleisplan! :)

Beitrag von MasterK » Mittwoch 2. Oktober 2013, 08:51

Stefan mit F hat geschrieben:Um ein fremdes Bild im Netz zu veröffentlichen, genügt N I C H T ausschließlich die Angabe der Quelle!
Du benötigst dabei I M M E R das Einverständnis des Rechteinhabers!
Das stimmt. Ich hätte Verlinkung schreiben müssen...
Wenn es interessiert, hier gibt's einen guten Artikel zu dem Thema: http://www.heise.de/ct/artikel/Fotofallen-1711494.html

Da steht übrigens auch drin, dass man keine eigenen Bilder von geschützten Werken (wie z.B. der Beleuchtung des Eifelturms) veröffentlichen darf.

LG

Benutzeravatar
Stefan mit F
Forumane
Beiträge: 8000
Registriert: Mittwoch 1. Juni 2011, 18:09
Wohnort: 2⅙ Grad südlich und 2½ Grad westlich des MiWuLa

Re: Anlagenplanung - Hilfe bei Gleisplan! :)

Beitrag von Stefan mit F » Mittwoch 2. Oktober 2013, 21:54

Moin,
MasterK hat geschrieben:
Stefan mit F hat geschrieben:Um ein fremdes Bild im Netz zu veröffentlichen, genügt N I C H T ausschließlich die Angabe der Quelle!
Du benötigst dabei I M M E R das Einverständnis des Rechteinhabers!
Das stimmt. Ich hätte Verlinkung schreiben müssen...
das ist noch so eine seltsame, unvollständige und imho unnütze Bemerkung. :x

Verlinken darf man - wenn sich hinter den Links nicht in irgendeiner Weise verbotenes Material befindet - quasi alles.
Selbst hochladen darf man nur das, was einem selbst gehört*, ganz gleich ob man die Quelle verlinkt! So einfach ist das.
*Es sei denn man hat das Einverständnis sämtlicher Rechteinhaber
Die AfD im Bundestag ist eine Schande für Deutschland.
‒ Esther Bejarano, Holocaust-Überlebende, 15.12.1924 - 10.07.2021

MasterK

Re: Anlagenplanung - Hilfe bei Gleisplan! :)

Beitrag von MasterK » Donnerstag 3. Oktober 2013, 18:26

Stefan mit F hat geschrieben:das ist noch so eine seltsame, unvollständige und imho unnütze Bemerkung. :x
Hallo Stefan mit f,

wenn du meinen letzten post so deutest ist das deine Meinung, die mir auch ein interessantes Bild verschafft. Es ist wohl nicht mehr nötig an dieser Stelle noch weiter zu diskutieren. Also gern zurück zum eigentlichen Thema.

Liebe Grüße!

Benutzeravatar
Stefan mit F
Forumane
Beiträge: 8000
Registriert: Mittwoch 1. Juni 2011, 18:09
Wohnort: 2⅙ Grad südlich und 2½ Grad westlich des MiWuLa

Re: Anlagenplanung - Hilfe bei Gleisplan! :)

Beitrag von Stefan mit F » Donnerstag 3. Oktober 2013, 18:41

Moin MasterK,
MasterK hat geschrieben:wenn du meinen letzten post so deutest
ich habe mich mit meiner letzten Aussage ausschließlich auf den von mir zitierten Teil deines Posts bezogen.
Der Rest ist immerhin verständlich, auch wenn der gut lesbare Heise-Artikel wenig mit Marlons Gleisplanung zu tun hat.
Die AfD im Bundestag ist eine Schande für Deutschland.
‒ Esther Bejarano, Holocaust-Überlebende, 15.12.1924 - 10.07.2021

Bernd W.
Forumane
Beiträge: 1582
Registriert: Dienstag 5. April 2005, 22:32
Wohnort: Ruhrgebiet

Re: Anlagenplanung - Hilfe bei Gleisplan! :)

Beitrag von Bernd W. » Donnerstag 3. Oktober 2013, 22:38

Hallo Marlon1999,
zeichne doch einfach auf Papier mal einen groben Gleisplan mit allen Sachen die du bauen willst. Das geht schneller und mit Lineal und Zirkel kann man auch einiges hinbekommen.
Dann versuchst du das in einer Gleisplanungssoftware umzusetzen. Dann merkt man das Weichen und Kurvenradien nicht immer dahin passen wo man sie sich wünscht :(

Ich habe auch erst immer eine grobe Skizze auf Papier gemacht und diese dann in einer Gleisplanungssoftware umgesetzt.
In Summe habe ich aber Weichenstraßen und Bahnhöfe durchaus bis zu 60mal! umgeplant bis es mir gefiel.

Gruß Bernd

Marlon1999

Re: Anlagenplanung - Hilfe bei Gleisplan! :)

Beitrag von Marlon1999 » Freitag 4. Oktober 2013, 10:26

Hi,

Danke Bernd für den Tip! :) ich fange gleich mit der Planung an :D mal schauen, wie es wird.

Gruß
Marlon1999

borussia

Re: Anlagenplanung - Hilfe bei Gleisplan! :)

Beitrag von borussia » Sonntag 6. Oktober 2013, 18:40

Hallo Marlon1999,

ich denke mal die Rahmenbausweise wäre perfekt für dich. Den Teil an der Wand würde ich als Schattenbahnhof für bis zu 7 Gleisen benutzen und dann einen 30-40cm großen Spalt lassen und danach mit der Landschaft anfangen. Dann hast du Höhe gewonnen und eine gute Zugänglichkeit bekommen und hast immer noch eine große Breite mit der du lange zu tun hast um alles zu bebauen. Denn die Größe der Anlage auf Rollen zu bewegen alleine ist schwer, denn die Anlage würde sich schnell an der Wand verkanten.
Und für den schtbaren Bereich der Gleisplanung überlege dir welche Sachen eingebauten werden sollen und auf welche du Verzichten kannst. Mit der ICE Strecke hast du eine gute Idee, aber ich würde es eher als eine Paradestrecke benutzen um alle deine Züge in voller Länge sehen zu können. Die Paradestrecke würde ich versuchen etwas höher zu verlegen, dass du sie gut sehen kannst und keine Strecke direkt darunter oder darüber hast um ein gutes Erscheinungsbild der Züge zu haben.
In den höheren Ebenen könntest du eine schöne Nebenbahnstrecke einplanen.
Mit der mobile Station hast du schon einmal einen guten Grundstein für die ersten Züge und wenn du die Weichen analog schalten willst ist ein Gleisschaltbild perfekt dafür.
Ich hoffe ich konnte dir ein bisschen helfen, das waren nämlich auch meine Pläne früher gewesen bis ein wohl kleiner Kellerraum frei geworden ist, aber für mich reicht es.

Antworten